Chalet Simplicity

Spacious open-plan living area embracing the essence of minimalism, with soft neutral tones, natural wood finishes, and clean architectural lines. A large sectional sofa anchors the space, complemented by a sleek kitchen island and bar stools—creating an atmosphere of quiet luxury and effortless flow.

Key Features

- Conceptual design
- Preliminary cost estimation
- Preliminary design
- Project design
- Detailed studies
- Tender plans
- Tendering and awarding of contracts
- Execution plans
- Contractor agreements
- Architectural supervision
- Project management and cost control
- Commissioning
- Project documentation
- Final work account
Spacious open-plan living area embracing the essence of minimalism, with soft neutral tones, natural wood finishes, and clean architectural lines. A large sectional sofa anchors the space, complemented by a sleek kitchen island and bar stools—creating an atmosphere of quiet luxury and effortless flow.

Refined and harmonious living space where the kitchen, dining, and lounge areas merge seamlessly. The pale wood cabinetry and stone surfaces are paired with minimalist black fixtures and understated furnishings, offering a serene and stylish environment that celebrates simplicity and comfort.

A cozy lounge with alpine views, where warm textures meet clean lines, framed by the calm of the mountains beyond.

A calm, minimal living space with built-in cabinetry, soft curtains, and a striking stone fireplace. Natural textures and clean lines create a warm, refined atmosphere.

A serene open-plan living area with a textured stone fireplace, soft-toned sofa, and elegant built-in cabinetry. Subtle lighting and natural materials offer a warm, balanced ambiance.

A serene dining area bathed in soft light, where natural textures and gentle tones create an inviting, intimate atmosphere.

A soft transition space opens to a light-filled living area, framed by clean cabinetry and warm textures. The layout flows seamlessly from entry to kitchen to lounge, offering both elegance and ease.

A serene bedroom with soft tones and natural textures, inviting calm and restful nights.

Soft curtains and built-in woodwork create a peaceful, cocoon-like atmosphere in this quiet bedroom corner.

A refined mix of textures and soft light defines this elegant, minimalist bathroom.

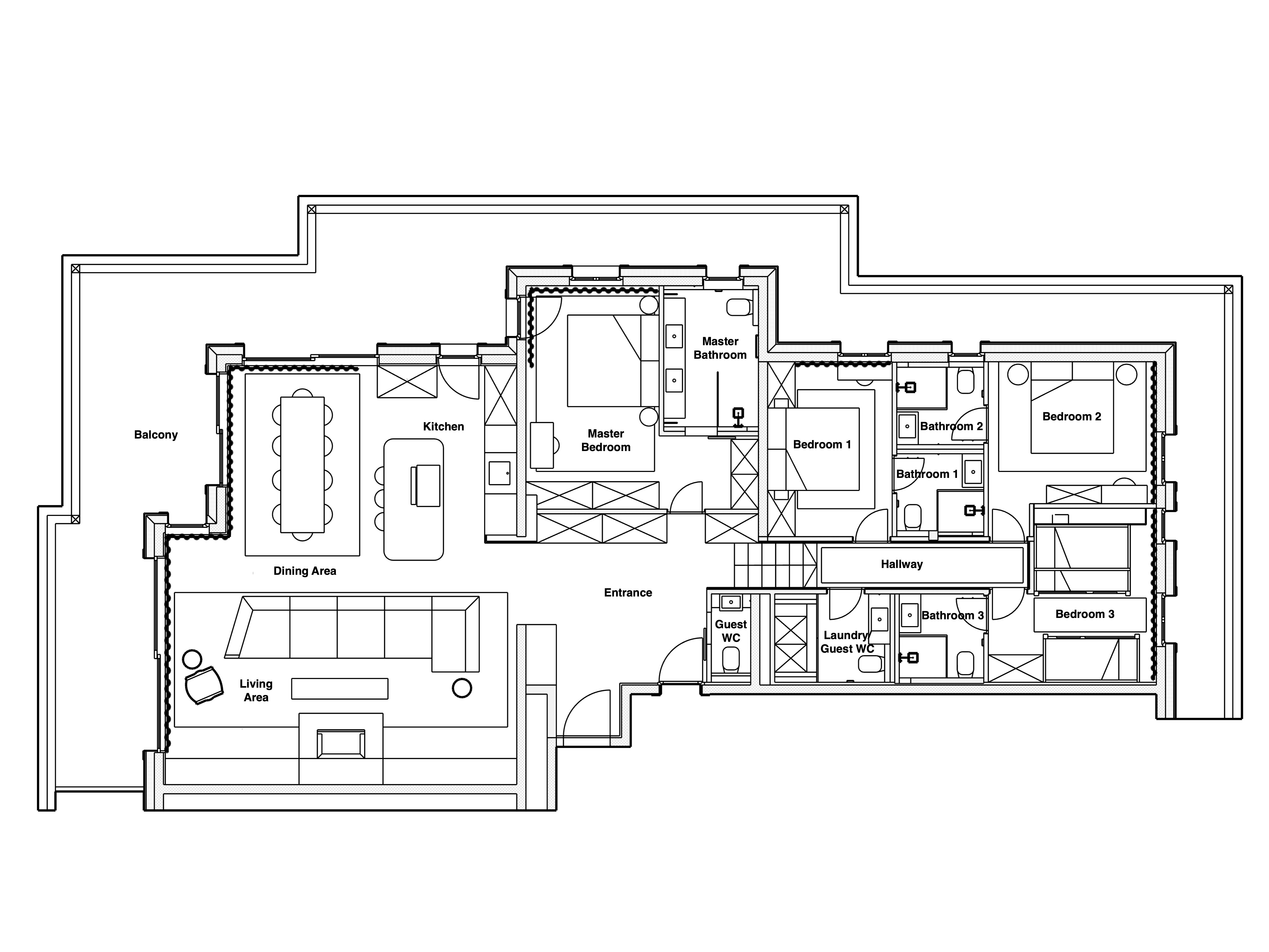
The plan of this beautiful mountain chalet